Solitaire Infiniti Interiors

Residential Design — Overview

This transformative project seeks to enhance the play of light and natural elements in the living spaces

interior view

Project : Solitaire Infiniti
Location : Vadodara, Gujarat
Project Area : 14,000 sqft

This project explores housing as a long-term framework for everyday life, shaped by light, movement, and evolving needs. Spaces are composed to feel intuitive and lived-in, balancing clarity in planning with warmth in materiality. The result is a home that ages gracefully with its occupants.

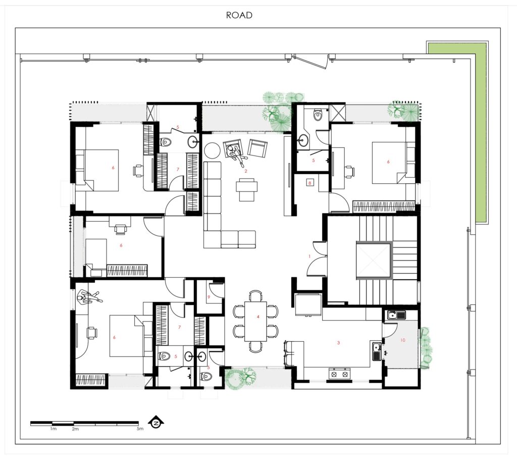
The client is a Real Estate Developer looking to convert a plot of land in a densely populated residential area into sellable and market friendly yet comfortable Multi dwelling residential building. The Houses are designed to get ample sun light and air from all directions. Each bedroom too gets an avenue of cross ventilation. One floor one apartment concept was used to,give a luxurious feel to the house despite of the tight plot size. With a lot of windows on all four sides, the house are well lit and well ventillated throughout the day. The plan with cardinal points having utility areas, makes both horizontal and vertical axis free for circulation inturn making the plan open and the house look spacious from within.

A Quiet Urban Retreat